Home > Hubbell Lighting > Columbia Lighting LEPC24-30-LW-G-LL-ED1-U 34W 2'x4' LED Full Distribution Luminaire, 3000K, Low Watt Lumen Output, Grid Ceiling Type, Low Lamp Image Shielding, 0-10V Dimming 1% Dimming, 120-277V

description
PRODUCT FAMILY SPECIFICATIONS
CONSTRUCTION
CONSTRUCTION
Luminaire housing, end caps, and reflectors are die-formed code-gauge cold-rolled steel. Frameless optics system hinges from either side for easy access to lamps and electrical components. Mechanical light trap prevents light leaks. Latches are spring loaded. Fixture construction is standard static. Air handling return air side slots are available as option.
FINISH
All visible parts are custom formulated soft, nonglare high-reflectance white powder coat finish, painted after fabrication.
SHIELDING
Lenses are high transmission extruded acrylic.
INSTALLATION
An access plate is furnished with each recessed fixture for fast wiring connections without the necessity to open the fixture or wireway.
CEILING COMPATIBILITY
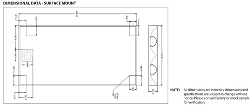
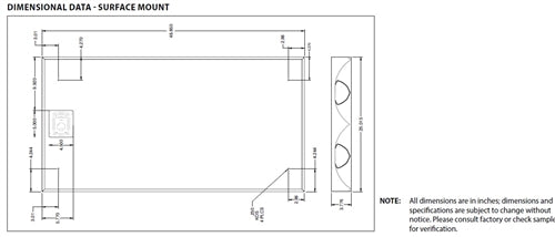
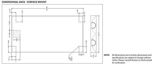
Luminaire fits recessed exposed grid ceilings (G); four integral T-Bar clips standard. A flange kit (FK) option is available for recessed hard ceiling applications. Surface Mount (SM) option allows placement on ceiling plane. Cable Mount option (CM) allows suspension below ceiling plane. For information on compatibility with specific ceilings, or where plenum depth is a problem, contact your representative.
CERTIFICATION
All luminaires are built to UL1598 and 2108 standards, and bear appropriate CSA labels. Damp location labeling is standard. Emergency equipped fixtures labeled UL924. Adheres to LM79, LM80 and TM21 standards. IC rating is standard on all models. UL Sanitation Approved.
WARRANTY
Five year warranty. (Terms and Conditions apply)
FINISH
All visible parts are custom formulated soft, nonglare high-reflectance white powder coat finish, painted after fabrication.
SHIELDING
Lenses are high transmission extruded acrylic.
INSTALLATION
An access plate is furnished with each recessed fixture for fast wiring connections without the necessity to open the fixture or wireway.
CEILING COMPATIBILITY
Luminaire fits recessed exposed grid ceilings (G); four integral T-Bar clips standard. A flange kit (FK) option is available for recessed hard ceiling applications. Surface Mount (SM) option allows placement on ceiling plane. Cable Mount option (CM) allows suspension below ceiling plane. For information on compatibility with specific ceilings, or where plenum depth is a problem, contact your representative.
CERTIFICATION
All luminaires are built to UL1598 and 2108 standards, and bear appropriate CSA labels. Damp location labeling is standard. Emergency equipped fixtures labeled UL924. Adheres to LM79, LM80 and TM21 standards. IC rating is standard on all models. UL Sanitation Approved.
WARRANTY
Five year warranty. (Terms and Conditions apply)
Share your knowledge of this product. Be the first to write a review »
Browse for more products in the same category as this item:
Download PDF Specification