description
Juno IC1LEDG4 Series, dedicated 4-inch LED new construction housing with integral light engine and choice of dimmable drivers: 11.5W nominal dedicated 120 volt driver with forward phase and ELV dimming or 12.6W nominal universal 120V-277V driver with 0-10V dimming. Shallow housing construction. IC housing designed for use with IC or non-IC construction. Wide flood optic provided as standard. 90 CRI minimum.
Features & Benefits
- Dedicated LED, Air-Loc® sealed new construction housing with integral light engine
- Double wall, shallow housing construction allows for fit in 2 x 6 construction
- Can be completely covered with insulation
- Fully sealed housing stops infiltration and exfiltration of air, reducing heating and air cooling costs without the use of additional gaskets
- LED housing is designed to provide 50,000 hours of life and is compatible with many standard Juno trims
- 5 year limited warranty on LED components.
|
LED Light Engine
|
-
LED array attached to high purity aluminum, thermally conductive inner housing and heat sink provides superior heat transfer to ensure long life of the LED
- Replaceable light engine mounts directly to inner housing assembly and incorporates the latest generation, high lumen output LED array
- LEDs are binned to standards that exceed ENERGY STAR® requirements yielding superior fixture to fixture color uniformity
- 2700K, 3000K, 3500K, or 4100K color temperatures available
- 90 CRI minimum.
|
|
Optical System
|
-
Computer-optimized reflector design with high reflectance finish coupled with a high transmission diffusing lens conceals the LEDs and produces uniform aperture luminance.
- Deep regression of lens produces a low glare, efficient system that can produce over 600 lumens with select trims using less than 12W.
|
|
Aesthetic Trim Selections
|
Compatible with wide selection of existing Juno trims
Shadow free, knife edge design blends seamlessly into ceiling.
|
|
LED Driver
|
-
Choice of dedicated 120 volt driver or universal voltage driver that accommodates input voltages from 120-277 volts AC at 50/60Hz
- Power factor > 0.9 at 120V input
- 120 volt only driver is dimmable with the use of most incandescent, magnetic low voltage and electronic low voltage wall box dimmers
- Universal voltage driver is dimmable with the use of most 0-10V wall box dimmers
Mounted inside housing for easy access from below ceiling.
|
|
Life
|
Rated for 50,000 hours at 70% lumen maintenance.
|
|
Labels
|
-
ENERGY STAR® qualified to luminaires V1.1 requirements when used with select trims
- Certified to the high efficiency requirements of California T24-2008 with select trims
- UL listed for U.S. and Canada through-branch wiring, wet locations (covered ceilings)
- Union made
- UL and cUL.
|
|
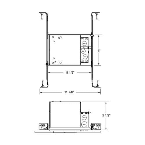
Housing
|
-
Designed for use in IC (insulated ceiling) or non-IC construction
- Aluminum housing sealed for Air-Loc® compliance
- Housing is vertically adjustable to accommodate up to a 11⁄2” ceiling thickness.
|
|
Junction Box
|
-
Pre-wired junction box provided with (6) 1⁄2” and (1) 3⁄4” knockouts, (4) knockouts for 12/2 or 14/2 NM cable and ground wire
- UL listed and cUL listed for through-branch wiring, maximum 6 #12 branch circuit conductors
- Junction box provided with removable access plates
- Knockouts equipped with pryout slots
- Quick connect electrical connectors supplied as standard for fast, secure installation.
|
|
Mounting Frame
|
-
22-gauge die-formed galvanized steel mounting frame
- Rough-in section (junction box, mounting frame, housing and bar hangers) fully assembled for ease of installation.
|
|
Real Nail 3 Bar Hangers
|
-
Telescoping Real Nail 3® system permits quick placement of housing anywhere within 24” O.C. joists or suspended ceilings
- Includes removable nail for repositioning of fixture in wood joist construction
- Integral T-bar notch and clip for suspended ceilings
|
