Home > Juno Lighting > Juno Recessed Lighting IC928LED G4 14LM 27K 90CRI MVOLT ZT1 6" Super Slope LED New Construction IC Type Housing 1400 Lumens, 2700K Color Temperature, Universal Driver 120-277V, 0-10V, 1% Dim

description
PRODUCT DESCRIPTION
LED Light Engine
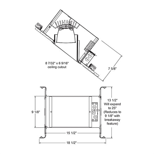
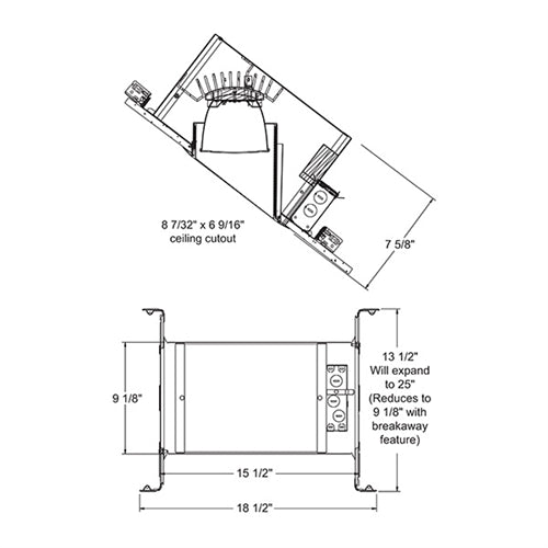
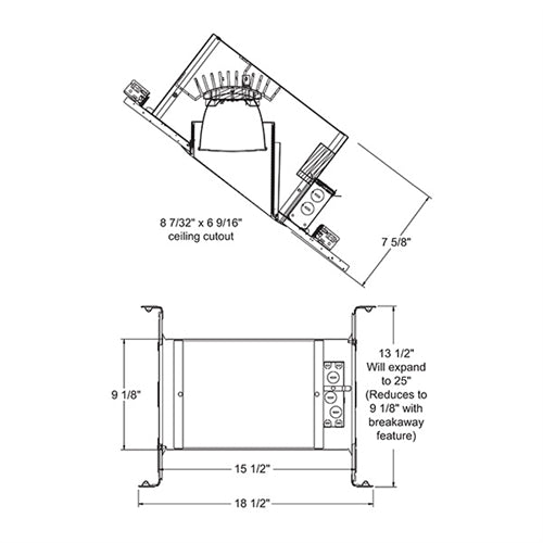
- Dedicated LED, Air-Loc sealed slope ceiling new construction housing with integral light engine
- IC rated construction housing can be completly covered with insulation
- Fully sealed housing stops infiltration and exfiltration of air, reducing heating and air cooling costs without the use of additional gaskets
- LED housing is designed to provide 50,000 hours of life and is compatible with standard Juno trims
- 5 year limited warranty on LED components.
LED Light Engine
- Extruded heat sink and cast aluminum slider plate integrated directly with housing provides superior thermal management to ensure the long life of the LED
- Replaceable light engine mounts directly to slider plate and incorporates the latest generation, high lumen output LED array
- LEDs are binned within a 3-step MacAdam Ellipse exceeding ENERGY STAR requirements for superior fixture to fixture color uniformity
- 2700K, 3000K, 3500K, or 4000K color temperatures available
- 90 CRI minimum.
- Computer-optimized internal reflector with specular finish coupled with a high transmission diffusing lens conceals the LEDs and produces uniform aperture luminance
- Adjustable slider plate to position LEDs/reflector perpendicular to floor
- Plate includes 1/4" adjustment indicators for consistent alignment.
- Compatible with a selection of existing Juno trims
- Trims are wet location approved for covered ceiling applications
- See PDF Specification for trim selections
- Choice of dedicated 120 volt (120) driver or universal voltage (MVOLT) drivers that accommodate input voltages from 120-277 volts AC at 50-60Hz
- Power factor > 0.9 at 120V input 120 volt only driver dimmable with the use of most incandescent, magnetic low voltage and electronic low voltage wall box dimmers
- Universal voltage drivers are dimmable with the use of most 0-10V wall dimmers
- For a list of compatible dimmers, see JUNOICLED-DIM
- Mounted inside housing on a removable J-box cover for ease of maintenance.
Life Rated for 50,000 hours at 70% lumen maintenance.
Labels- UL listed for U.S. and Canada through-branch wiring, wet locations (covered ceilings)
- Union made
- UL and cUL listed.
Share your knowledge of this product. Be the first to write a review »
Browse for more products in the same category as this item:
Download Open Trims PDF Specification