Home > Halo Lighting > Lumark NFFLD-L-C100-T 252W Night Falcon Large LED Floodlight, 120-277V, 6x6 Distribution, Non Dimming, 33900 Lumens, Trunion Mount

description
PRODUCT DESCRIPTION
The Night Falcon high wattage LED floodlight luminaire combines high-efficiency, precision engineered optics and energy efficiency in a cost-effective solution. Incorporating an innovative thermal management design into the fixture, that maximizes heat dissipation, results in longer fixture and LED life. The rugged, die-cast housing is IP66 and 3G vibration rated for exceptional durability and long term reliability. The Night Falcon luminaire is ideal floodlight for many area outdoor lighting situations, including parking lots, construction and storage sites, rail yards, light industrial locations, marinas and service areas.
PRODUCT SPECIFICATIONS
Construction
Heavy-duty, die cast aluminum housing, driver compartment and driver housing door. A separate driver compartment and external fins provide optimal thermal management that result in longer LED and driver life.The housing, driver compartment and optical chamber are IP66 rated. Access the driver for maintenance is achieved with a removable driver door using pan head screws. A one-piece silicone gasket seals the door to the fixture housing. The fixture is 3G vibration rated (ANSI C136.31) to ensure durability in area and site lighting applications.
Optics
The LED chamber(s) incorporate a vacuum metalized reflector that provides high-efficiency illumination. Optics are precisely designed to shape the the NEMA 6H x 6V wide distribution and the 3H x 3V spot distribution, maximizing efficiency and application spacing. Clear glass tempered lens with full circumference form-in-place silicone gasket protects the optics from damage. Offered standard in 4000K (+/- 275K) CCT and minimum 70 CRI. Optional 3000K, 5000K and 5700K CCT.
Electrical
LED drivers are mounted to the removable die-cast aluminum doors for optimal heat sinking and ease of maintenance. 120-277V 50/60Hz, 347V 60Hz or 480V 60Hz operation. Integral 6kV surge is standard.10kV/10kA common- and differential- mode surge protection available as an option. 0-10V dimming driver is available to accommodate controls capability such as dimming and occupancy.
Standard NEMA 3-PIN twistlock photocontrol receptacle and NEMA 7-PIN twistlock photocontrol receptacles are available as options. Suitable for ambient temperatures from -40 degree C to 40 degree C. 90% lumen maintenance greater than 50,000 hours per IESNA TM-21 at 25 degree C.
Accessories
Heavy-duty steel top and side visors control glare and spill light. 1/8" thick UV stabilized vandal guard shields glass lens from impact when mounted at low levels. Easy to install wire guard features a heavy-gauge welded construction with corrosion resistant polyester powder coat finish to protect glass from projected objects.
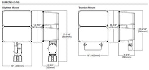
Mounting
Mounting options include an integral die-cast aluminum slipfitter that fits 2-3/8" - 3" O.D. tenon.The trunnion mounting includes a 1/4" polyester powder coated galvanized steel trunnion with a 14/3 SOW cord. The trunnion mount uses an interlocking slide adjustment that is locked into place with a set screw.
Finish
Housing and cast parts finished in five-stage super TGIC polyester powder coat paint, 2.5 mil nominal thickness for superior protection against fade and wear. Standard color is carbon bronze. Additional colors available in summit white, white, grey, bronze, black, dark platinum and graphite metallic.
Consult us for a complete selection of standard colors.
Warranty
Five-year warranty.

The Night Falcon high wattage LED floodlight luminaire combines high-efficiency, precision engineered optics and energy efficiency in a cost-effective solution. Incorporating an innovative thermal management design into the fixture, that maximizes heat dissipation, results in longer fixture and LED life. The rugged, die-cast housing is IP66 and 3G vibration rated for exceptional durability and long term reliability. The Night Falcon luminaire is ideal floodlight for many area outdoor lighting situations, including parking lots, construction and storage sites, rail yards, light industrial locations, marinas and service areas.
PRODUCT SPECIFICATIONS
Construction
Heavy-duty, die cast aluminum housing, driver compartment and driver housing door. A separate driver compartment and external fins provide optimal thermal management that result in longer LED and driver life.The housing, driver compartment and optical chamber are IP66 rated. Access the driver for maintenance is achieved with a removable driver door using pan head screws. A one-piece silicone gasket seals the door to the fixture housing. The fixture is 3G vibration rated (ANSI C136.31) to ensure durability in area and site lighting applications.
Optics
The LED chamber(s) incorporate a vacuum metalized reflector that provides high-efficiency illumination. Optics are precisely designed to shape the the NEMA 6H x 6V wide distribution and the 3H x 3V spot distribution, maximizing efficiency and application spacing. Clear glass tempered lens with full circumference form-in-place silicone gasket protects the optics from damage. Offered standard in 4000K (+/- 275K) CCT and minimum 70 CRI. Optional 3000K, 5000K and 5700K CCT.
Electrical
LED drivers are mounted to the removable die-cast aluminum doors for optimal heat sinking and ease of maintenance. 120-277V 50/60Hz, 347V 60Hz or 480V 60Hz operation. Integral 6kV surge is standard.10kV/10kA common- and differential- mode surge protection available as an option. 0-10V dimming driver is available to accommodate controls capability such as dimming and occupancy.
Standard NEMA 3-PIN twistlock photocontrol receptacle and NEMA 7-PIN twistlock photocontrol receptacles are available as options. Suitable for ambient temperatures from -40 degree C to 40 degree C. 90% lumen maintenance greater than 50,000 hours per IESNA TM-21 at 25 degree C.
Accessories
Heavy-duty steel top and side visors control glare and spill light. 1/8" thick UV stabilized vandal guard shields glass lens from impact when mounted at low levels. Easy to install wire guard features a heavy-gauge welded construction with corrosion resistant polyester powder coat finish to protect glass from projected objects.
Mounting
Mounting options include an integral die-cast aluminum slipfitter that fits 2-3/8" - 3" O.D. tenon.The trunnion mounting includes a 1/4" polyester powder coated galvanized steel trunnion with a 14/3 SOW cord. The trunnion mount uses an interlocking slide adjustment that is locked into place with a set screw.
Finish
Housing and cast parts finished in five-stage super TGIC polyester powder coat paint, 2.5 mil nominal thickness for superior protection against fade and wear. Standard color is carbon bronze. Additional colors available in summit white, white, grey, bronze, black, dark platinum and graphite metallic.
Consult us for a complete selection of standard colors.
Warranty
Five-year warranty.

Share your knowledge of this product. Be the first to write a review »
Browse for more products in the same category as this item:
Download PDF Specification